Click here to go to the NNJ homepage

Figures for Dag Nilsen's
The Squaring of the Circle in Two Early Norwegian Cathedrals?

| Fig. 1 | Fig. 2 | Fig. 3 | Fig. 4 | Fig. 5 | Fig. 6 | Fig. 7 | Fig. 8 | Fig. 9 | Fig. 10 | Fig. 11 | Fig. 12 |
| Fig. 13 | Fig. 14 | Fig. 15 | Fig. 16 | Fig. 17 | Fig. 18 | Fig. 19 |

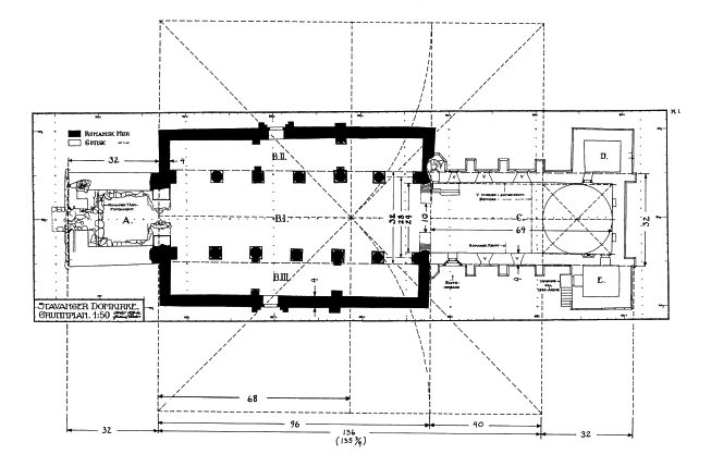
Figure 17. Overall plan. Numbers refer to approximations by the unit of 32.5 cm, or a quarter of the average wall thickness.| back to text |

Figure 17 for Dag Nilsen 

| Top of Page |